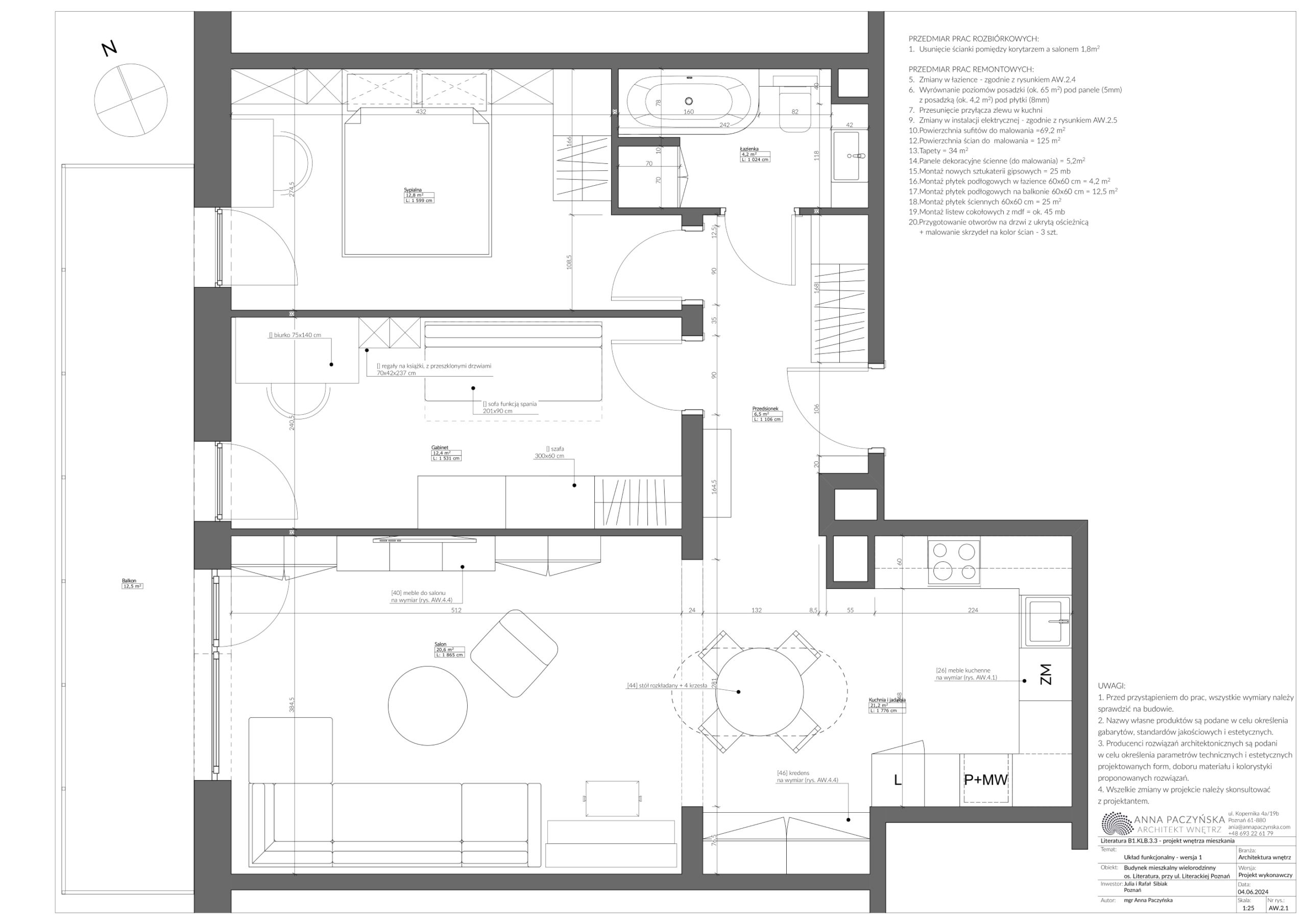
Nazwa projektu
PROJEKT WNĘTRZA MIESZKANIA (69 m2)
Projekt: czerwiec 2024 Realizacja: czerwiec 2025
Pełen projekt koncepcyjny i wykonawczy wnętrz, w tym:
– projekt układu funkcjonalnego dopasowanego do potrzeb inwestorów
– opracowanie koniecznych zmian w projekcie instalacji elektrycznej i sanitarnej
– dobór posadzek oraz kolorystyki ścian
– projekt mebli na wymiar
– dobór wyposażenia oraz dodatków
















































