Nazwa projektu
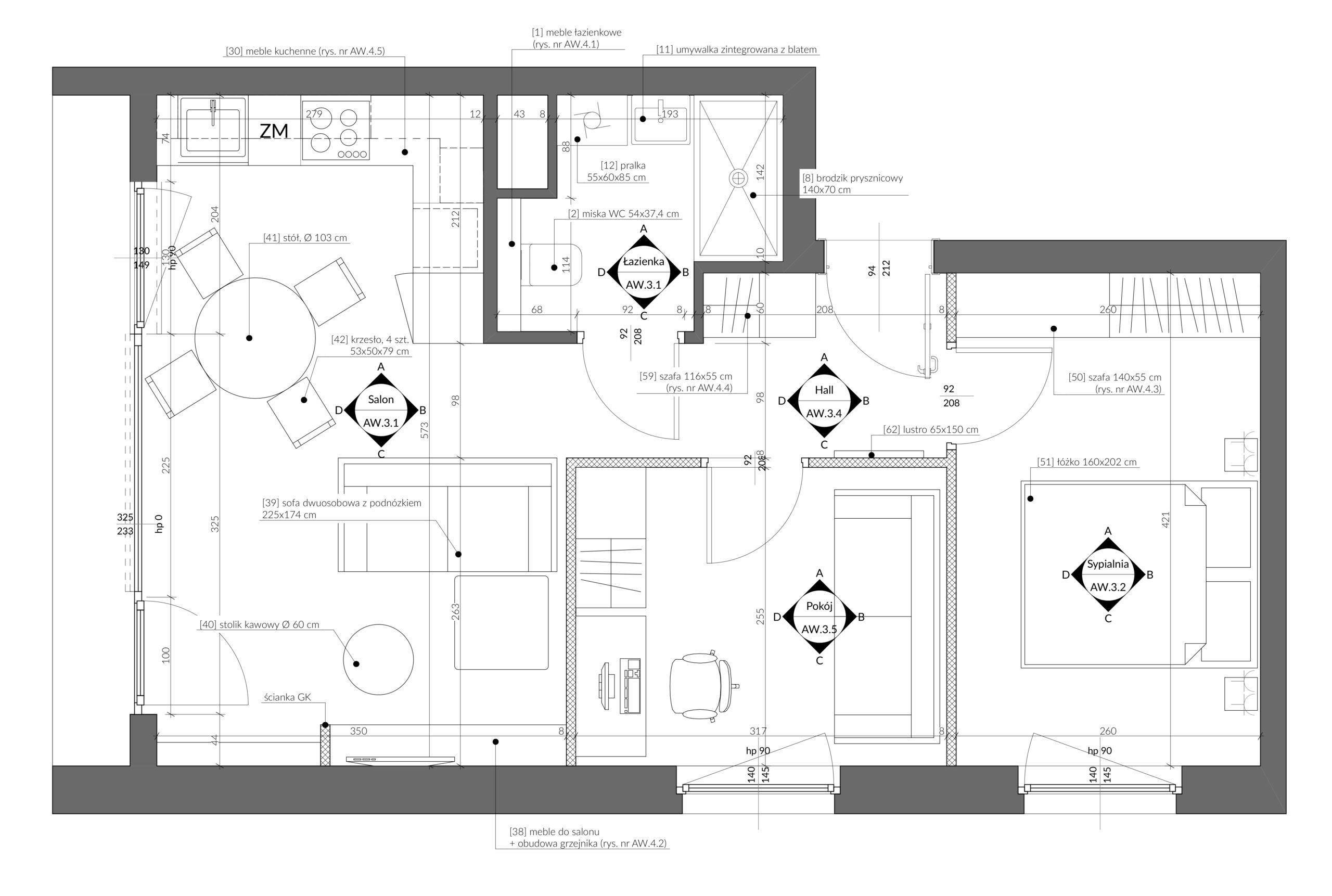
PROJEKT WNĘTRZA MIESZKANIA NA WYNAJEM (46 m2)
Projekt: październik 2023 Realizacja: listopad 2024
Pełen projekt koncepcyjny i wykonawczy wnętrz, w tym:
– projekt układu funkcjonalnego, korygującego układ deweloperski
– opracowanie drobnych zmian w projekcie instalacji elektrycznej i sanitarnej
– dobór posadzek oraz kolorystyki ścian
– projekt mebli na wymiar w tym mebli kuchennych, łazienkowych i szaf
– dobór wyposażenia oraz dodatków
– nadzór inwestorski nad pracami
























